Установка главной передачи от ГАЗ 71 — бортжурнал PTZavr амфибия 6х6 2012 года на DRIVE2
]Решил попробовать установить на зеленый главную передачу с фрикционами от ГАЗ 71 .
Так как досталась она в печальном виде и вообще не крутилась, то проводим полную разборку для установления состояния и заодно для ознакомления с конструкцией.
Довольно простой механизм со значительным запасом прочности для легких машин. Особенно для меня это явный перебор но другого ничего нет в нашей промышленности.
И так приступим.
Общий вид с частичной разборкой . Сняты барабаны, крышка, фланец.
Мне досталась разукомплектованная и потому барабаны были отдельно.

Полный размер
Пакеты фрикционов снимаются довольно просто, надо только сделать спецключ из трубы под гайку с 4 мя пазами внутри пакетов. Там резьба правая и левая и еще есть стопорная чашка под гайками, не забудьте отогнуть язычек.
Хвостовик выпресовывается довольно туго и снимается в сборе с корпусом. Везде много регулировочных прокладок и не одной картонной.

Полный размер
Вот пакеты и хвост в сборе.
У меня все диски слепились и придется их разбирать и чистить.

Полный размер
Разобранный пакет. Все ржавое .

Полный размер
Корпус алюминевый, довольно легкий .

Полный размер
Ведомый вал. Главная пара.
Вал довольно простой и симметричный. Металлоемкость его довольно прилична.

Полный размер
Завтра я все взвешу и что то измерю.
Если у кого есть вопросы, спрашивайте пока не собрал.
В дальнейшем я буду ставить дисковые тормоза и гидралическое управление на базе цилиндров сцепления ваз.
Переворачиваем вращение редуктора, для этого протачиваем корпус на 5 мм.
Полный размер

Полный размер
Дисковые тормоза.
Подготовка барабанов.
Барабан чугуний, и по идее бы диск надо чугунный тоже, да нет такой заготовки под рукой. Можно наврно подобрать плиту от печи. Надо под суппорт 2108 диск на 370 мм при барабане в 294мм. Я сделал из стали и буду его прикручивать в единсвенно возможное место а есть вариант с другой стороны, но не понятно еще как там его приделали и из чего сам диск.

Полный размер

Полный размер
Примерка.

Полный размер
www.drive2.ru
Бортоповоротный Вездеход на ГП ГАЗ-71
Вездеход строился для поездах на охоту и рыбалку по болотистой местности. Он строился как своего рода дополнение к уже имеющимся моделям. Вездеход должен вмещать в себя минимум трех человек, а так же перевозить все необходимое снаряжение для охоты, а так же инструмент.
1)ГП газ 71
2) комплектная Ока.
3) Колеса использованы ИЯВ-79 от Т150 ободранные.
4)Двигатель внутреннего сгорания Kubota V1902
5) Труба бесшовная 76 на 5
6) Подшипники 180110
ГП Газ 71 весит 122.5 кг и имеет следующие габариты:
Длинна 560
Ширина 560
Высота 300
Рассмотрим подробнее как строился вездеход бортоповоротного типа на базе ГП Газ-71.
Для начала автору пришлось решать основные вопросы по схеме вездехода. Необходимо было выбрать четырех или шестиколесную базу. Так же необходимо было рассчитать мощность двигателя необходимую для комфортной езды. Так как имелась возможность установки как двигателя от Нивы, так и поискать более мощный от машины с задним приводом, это решило бы вопрос переворачивания двигателя и заварки. Такой же вопрос был по поводу установки бортовых редукторов или все же использовать схему раздаточной коробки и понижающей передачи.
Основными стимулами для выбора именно бортоповоротной схемы вездехода были таки:
В первых моделях вездеходов собранных автором, слабые места были именно в гурах, раздатках и полуосях, в бортоповоротном он попытается избежать этого.
К тому же при такой схеме поворота маневренность гораздо лучше.
Вот так выглядят бортовые редуктора, а так же понижающая коробка:


Используя схему 6 на 6 можно соорудить более комфортный, а главное более вместимый вездеход. К тому же довольно легко расположить все элементы конструкций, в частности двигатель и коробку передач, нет нужды делать все слишком тесно. А это в свою очередь обеспечит более легкий доступ к деталям при починке или проведении технического осмотра машины.
Еще не мало важная деталь, что на таком вездеходе можно терять до двух колес и легко продолжать движение. Однако автор все же склонился в компоновке 4 на 4, по причине того, что колеса были выбраны довольно надежные, а размеры будущего вездехода позволяют и на двух осях поставить до трех рядов сидений.
Затем автор начал работы над полуосями для ГП, внутри при разборе была обнаружена зубчатая шестерня, которая довольно легко снималась. Поэтому решено было изготовить переход под любую распространенную ось, которую сможет добыть автор.
Вот так будет выглядеть реализация передачи при помощи цепей:

В качестве двигателя автором были рассмотрены следующие варианты: дизельный двигатель от фольцвагена на 1.6 литра, он довольно доступен и легок в обращении; Opel 1.3 CDTI или Renault 1.5 TD они довольно похожи, но чуть сложнее чем фольц из-за большего количества электроники. В принципе автор мог использовать газоновские карданы, чтобы соединить Гп с бортами, но все же предпочел выточить «грушу» для соединения зубчатой муфтой. Такое решение было принято из-за более надежного крепления. К тому же размеры кардана при использовании подобных двигателей довольно внушительные и муфта выглядит куда более компактно.
Далее будут показаны комплектующие для ГП от Газ-71:
Вот так выглядит промежуточный вал от груши к бортовым редукторам. В нем просверлено отверстие диаметром равным 25 миллиметрам.

А тут шестерня ведомая, причем шлицевая для посадки на вал от УАЗа, по причине того, что были использованы бортовые редуктора из армейского моста, который был обрезан.

А вот так называемая «груша». Точный размер автор не записал, но исходил из расчета формул модуль х на число всех зубьев плюс необходимый зазор в соединении для возможности складывания муфты. причем зазор по зубьям не большой всего пару десяток.

Затем были подготовлены колеса ИЯВ-79 от строительной техники Т-150.

Затем автор приступил к подготовке колес, а именно их облегчению с помощью обдирки слоев.

так же был приобретен двигатель Kubota V1902, один из наиболее надежных агрегатов, хотя весит и размерами довольно большой.

После испытаний двигателя было выявлено, что проблем с ним самим нет, заводится легко и не коптит. Единственная проблема это размеры и вес, так как при размещении с коробкой он будет расположен впритык, да и вездеход придется делать крепче, так как перегруз.

Тем временем продолжались работы по обдирке колес, так как обдирать ИЯВ-79 дело непростое, автор подошел к этому основательно. Плюсы этих колес по сравнению с резиной от ВИ-3 , которую планировалось установить изначально, в том, что ИЯВ-79 гораздо мягче и легче.

Ширину колеса довольно трудно измерить в не надутом состоянии, так как резина очень мягкая, а так выходит примерно под 55 сантиметров.

Дальше автор приступил к изготовлению ступиц, что в свою очередь оказалось не менее трудоемко.
Сам пакет подшипников сохраняет от смещения слева звезда, которая упирается в буртик оси. Справа же находится стопорное кольцо, на него идет давление от пакета через трубу , которая одета на ось.
Размеры оси: диаметр 50, посадочное 70, а толщина стенки 1 сантиметр.



Тут изображено как это выглядит на деле:


А тут прочерченный вариант с использованием гайки:

Сальник не используется так как подкачка газами еще не планируется, а от грязи все закрыто шайбой и звездой. Сальники возможно будут установлены позже, когда автор приступит к внешней отделки автомобиля.
Так же планируется использовать подшипник 7510 размерами 50 на 90. Буртик 1.5 мм будет подпадать под фаску подшипника, поэтому была установлена широкая шайба. А между шайбой и подшипником установлено регулировочное кольцо.

После доработки основных узлов автор построил прицеп для вездехода, в нем можно будет перевозить не только новую модель, но и старые машины.


А вот фотографии гаража-мастерской, где и собирались вездеходы:




Готовый вездеход:
Автор вездехода: Роман с ником «trofkir» на луноходов.нет.
Источник Становитесь автором сайта, публикуйте собственные статьи, описания самоделок с оплатой за текст. Подробнее здесь.
usamodelkina.ru
Статья 6. Пределы применимости главной передачи ГАЗ-71 в трансмиссии легкого вездехода. — Мои статьи — Каталог статей
Данная информация предназначается для тех, кто имеет базовые представления о проектировании и расчете трансмиссии легкого вездехода и понимает смысл крутящих моментов в узлах автомобиля и вездехода.
Если таких представлений нет, то в краткой форме их можно почерпнуть здесь:
http://off-roader.ru/publ/vaz_2101/1-1-0-1
В самодеятельном вездеходостроении появилась устойчивая тенденция замены парадигмы не оправдавшего надежды многих дифференциального поворота на фрикционный поворот.
Такая замена в большей степени продиктована не здравыми рассуждениями, а неудачным опытом использования дифференциальных механизмов в трансмиссиях вездеходов.
Основными аргументами противников дифференциального поворота является падение крутящего момента на инициирующей поворот гусенице и якобы пониженная надежность дифференциального механизма от автомобиля.
Вместо отработки надежных решений дифференциального поворота началось массовое увлечение поворотом фрикционным.
Технология фрикционного поворота по сути своей еще хуже технологии дифференциального поворота. И вот по каким причинам. Фактически фрикционный поворот – это езда на муфтах сцепления при условии частого манипулирования этими муфтами. Что в этом может быть хорошего, прогрессивного и надежного? Условия поворота зачастую требуют снятия потока мощности с борта вездехода с полной потерей тяги вездехода на этой стороне. Это катастрофа для транспортного средства, которое претендует на движение в любых условиях. При прямолинейном движении части трансмиссий обоих бортов вездехода жестко связаны между собой, что приводит к более высоким нагрузкам на трансмиссию по сравнению с дифференциальным вариантом, особенно на сильно развитой местности. При использовании дифференциального механизма поворота при движении по сильно развитой местности гусеницы (или пары колес борта) проходят разный путь. При фрикционном механизме гусеницы или пары колес борта в силу жесткой связки бортов вынуждены проходить одинаковый путь, что приводит к проволакиванию одного из бортов, что означает повышенные энергозатраты на преодоление бездорожья. По этим же причинам борт может потерять сцепление с почвой. У фрикционного механизма поворота число деталей больше, и это в основном детали трения.
Часто приходится слышать аргумент, что главная передача ГАЗ-71 (наиболее часто используемый механизм фрикционного поворота в легком вездеходе) намного надежней дифференциала моста ВАЗ-2101.
Нашли что сравнивать – фрикционный механизм от снегоболотохода полной массой под 6 тонн и дифференциальный механизм легкового автомобиля полной массой немногим более тонны. Если хочется объективных сравнений, возьмите дифференциальный узел моста ГАЗ-66 и сравнивайте с главной передачей (ГП) ГАЗ-71. Во сколько раз дифференциал ГАЗ-66 прослужит дольше фрикционных накладок ГП ГАЗ-71? Несопоставимо дольше. Жизнь сыграла злую шутку с дифференциальным поворотом: огромный выбор дифференциалов автомобилей и отсутствие навыков расчетов трансмиссии приводит к установке на вездеходы относительно легких (и по этой причине слабых) дифференциалов с неизбежным разрушением их непосильными нагрузками.
Впрочем, не будем мешать ажиотажу и ожиданиям в отношении фрикционного поворота. Попробуем просто оценить, на что способна ГП ГАЗ-71, чтобы ее не постигла участь дифференциалов в ближайшем же будущем.
Из-за отсутствия должной информации буду производить расчет нагрузочных способностей ГП ГАЗ-71 на основе документации на снегоболотоход ГАЗ-34039.
http://off-roader.ru/load/gaz_71_rukovodstvo_po_ehkspluatacii/1-1-0-1
Дизельный двигатель Д245.12С вездехода ГАЗ-34039 развивает максимальный крутящий момент 353 Нм. Двигатель соединен с 5-ступенчатой коробкой переключения передач (КПП), которая имеет на первой скорости передаточное число 6,555. В результате на выходе КПП может появиться максимальный крутящий момент
353 Нм х 6,555 = 2314 Нм.
Далее крутящий момент поступает на двухскоростную дополнительную передачу, максимальное передаточное число которой составляет 0,96. Максимальный крутящий момент на выходе дополнительной передачи (ДП) составит
2314 Нм х 0,96 = 2221 Нм.
Дополнительная передача объединена с главной передачей (ГП) с передаточным числом (ПЧ) 1,9. На выходе ГП максимальный крутящий момент составит
2221 Нм х 1,9 = 4220 Нм.
С выхода ГП ГАЗ-71 поступает на бортовые редукторы (БР) с передаточным числом 3,9. На выходе БР максимальный крутящий момент может составить
4220 Нм х 3,9 = 16458Нм.
В результате получается следующая схема трансмиссии

Собственно, все вычисления мы производили для того, чтобы установить, что на вход ГП ГАЗ-71 можно подавать максимальный крутящий момент 2221 Нм, а на выходе ГП обязана выдать как минимум крутящий момент 4220 Нм.
Посмотрим, какой крутящий момент может создать народно любимый двигатель Kubota V1505 в сочетании с КПП ВАЗ-2110, то есть пытаемся проверить обоснованность применения в вездеходе Шерп трансмиссии, состоящей из двигателя Kubota, КПП + ГП ВАЗ-2110 и ГП ГАЗ-71.
Максимальный крутящий момент двигателя составляет порядка 115 Нм, КПП имеет максимальное передаточное число (ПЧ) порядка 16. Значит, на выходе КПП максимальный крутящий момент может составить около 1840 Нм. Практически идеальное сочетание двигателя, КПП и ГП ГАЗ-71. Вариант основы трансмиссии типа двигатель ВАЗ-2108 + КПП ВАЗ-2108 + ГП ГАЗ-71 можно рекомендовать для применения в любых легких вездеходах, как гусеничных, так и колесных. Минимальные переделки заводских узлов самым благоприятным образом скажутся на сроках изготовления вездехода.
Что еще необходимо проверить при использовании ГП ГАЗ-71 в составе трансмиссии легкого вездехода? В состав ГП входит тормозная система. На что она рассчитана?
Полная масса вездехода ГАЗ-34039 составляет 5600 кг. При повороте на тормозящую гусеницу приходится на ровной местности 2800 кг. Предположим, что коэффициент сцепления с почвой равен единице. Ведущее колесо гусеничного движителя может иметь диаметр 535 мм или 560 мм. Считать будем худший вариант.
При торможении максимальный крутящий момент, который пытается растормозить вездеход, составляет
2800 кг х 9,8 Н/кг х 0,28 м = 7863 Нм, где 0,28 м – радиус ведущего колеса движителя.
При наличии бортового редуктора с ПЧ=3,9 максимальный растормаживающий момент на выходе ГП ГАЗ-71 составит
7863 Нм / 3,9 = 2016 Нм.
Фактически это тот минимальный крутящий момент, который должен выдерживать тормозной механизм одной стороны ГП ГАЗ-71.
Посмотрим, какие крутящие моменты, действующие на тормозную систему ГП ГАЗ-71, могут возникнуть в случае применения ГП на легком вездеходе с диаметром колес 1600 мм (то есть, на аналоге Шерпа).
Предположим, что наш вездеход имеет полную массу 2000 кг, то есть на каждый борт приходится по 1000 кг. При диаметре колес 1600 мм максимальный растормаживающий крутящий момент на оси колеса составит
1000 кгс х 9,8 х 0,8 м (радиус колеса) = 7840 Нм.
Однако, максимальный растормаживающий момент ГП Газ-71 составляет всего 2016Нм.
Необходимо растормаживающий момент от колеса понизить в 3,89 раза;
7840 Нм / 2016 Нм = 3,89
Таким образом, применение ГП ГАЗ-71 в колесных вездеходах с диаметром колес 1600 мм возможно только в том случае, если между колесом и ГП ГАЗ-71 установлен бортовой (или колесный ) редуктор с передаточным числом не менее 3,89. На эту роль очень хорошо подходят как цепной редуктор, так и бортовой редуктор (БР) ГАЗ-71. Для тех, кто принципиально не любит бортовые редукторы очень хорошей находкой при создании колесного бортповоротного вездехода будет использование ГП ГАЗ-71 в сочетании с БР ГАЗ-71, то есть использование значительной части трансмиссии вездехода ГАЗ-71.
Вот, собственно, все требования, соблюдение которых позволяют использовать ГП ГАЗ-71 в составе трансмиссии легкого колесного вездехода.
В варианте гусеничного вездехода все проще. Использование в качестве ведущей звездочки гусеничного движителя автомобильного стального диска диаметром 13 или 12 дюймов обычно не требует наличия бортового редуктора. Для легкого гусеничного вездехода обосновано и оправдано применение ГП ГАЗ-71. Собственно, для этого ГП ГАЗ-71 и создавалась.
В качестве альтернативы механическому поворотному узлу легкого вездехода на базе главной передачи (ГП) ГАЗ-71 рассмотрим возможность и обоснованность применения главных передач мостов УАЗ и ГАЗ-66.
Делая расчет по аналогии с расчетом трансмиссии вездехода ГАЗ-34039, получим следующие схемы трансмиссии.
Трансмиссия УАЗ-469.
Трансмиссия УАЗ-Хантер.
Трансмиссия ГАЗ-66.
Собственно, из схем трансмиссий нас интересует только максимальный крутящий момент на полуосях мостов в режиме незаблокированного дифференциала. В этом режиме на каждую полуось приходится половина максимального крутящего момента.
Как мы установили выше, главная передача ГАЗ-71 обязана на выходе обеспечить крутящий момент как минимум 4220 Нм. Шестерни полуосей (а значит, и сателлиты тоже) главной передачи УАЗ-469 обязаны выдерживать крутящий момент 3527 Нм, УАЗ-Хантер – 4123 Нм и ГАЗ-66 – 12861 Нм.
Таким образом, ГП УАЗ-469 немного не дотягивает до нагрузочной способности ГП ГАЗ-71, ГП УАЗ-Хантер практически полностью соответствует по нагрузочной способности ГП ГАЗ-71, а ГП ГАЗ-66 на выходе в три раза превосходит по нагрузочной способности ГП ГАЗ-71.
Аналогичный расчет дает значения для шестерен полуосей моста ВАЗ-2101 688 Нм и 1030 Нм для ВАЗ-2121 Нива. Нагрузочная способность ГП ГАЗ-71 превосходит ГП ВАЗ-2101 в 6,13 раза, и ГП ВАЗ-2121 Нива в 4,1 раза.
Вывод: сравнивать с точки зрения нагрузочных способностей фрикционный поворот на базе ГП ГАЗ-71 и дифференциальный поворот на базе ГП ВАЗ-2101 (равно как и абсолютно всего семейства ВАЗ) абсолютно некорректно. ГП ГАЗ-71 несопоставимо мощней.
Корректными сравнениями можно считать сравнения фрикционного поворота на базе ГП ГАЗ-71 и дифференциального поворота на базе УАЗ-Хантер.
Дифференциальный поворот на базе ГП ГАЗ-66 обязан по всем параметрам намного превосходить фрикционный поворот на базе ГП ГАЗ-71.
Следует обратить внимание на то важное обстоятельство, что по способности передавать крутящие моменты ГП ГАЗ-66 превосходит ГП ГАЗ-71 с двумя бортовыми редукторами ГАЗ-71. При этом вес ГП ГАЗ-71 составляет около 123 кг, вес ГП ГАЗ-66 составляет 74 кг. С учетом веса корпуса для ГП ГАЗ-66 и тормозных узлов колес можно считать, что узлы поворота на ГП ГАЗ-71 и ГП ГАз-66 будут иметь приблизительно одинаковую массу.
Также стоит отметить, что задний мост УАЗа весит около 100 кг, что также с учетом его распространенности делает отличным конкурентом ГП ГАЗ-71.
Вместе с тем, реализовать бортповоротный колесный вездеход на базе ГП моста ГАЗ-66 – задача довольно непростая. Проблема заключается в том, что дифференциальный механизм мостов ГАЗ-66 – это кулачковый дифференциал повышенного трения. В силу конструктивного решения коэффициент блокировки при передачи крутящего момента на левое колесо отличается довольно существенно от коэффициента блокировки при передаче момента на правое колесо. Сам коэффициент блокировки меняется в процессе эксплуатации в зависимости от степени износа деталей дифференциала. Поэтому создавать бортповоротный вездеход на базе ГП ГАЗ-66 можно только при наличии большого опыта и при условии возможности подбора ГП ГАЗ-66 по коэффициенту блокировки. Наградой будет уникальная тяговая характеристика вездехода без разрыва потока мощности при повороте.
Намного лучше свойства дифференциала повышенного трения моста ГАЗ-66 проявляются в вездеходах с переломной рамой.
Менее опытным вездеходостроителям при строительстве бортповоротного колесного вездехода лучше обратить внимание на главную передачу моста ГАЗ-3309. О применимости такой ГП рассказывается в следующей статье
http://off-roader.ru/publ/reinkarnacija_dif_4/1-1-0-9
Данная публикация является теоретической работой и не претендует на установление пределов прочности тех или иных узлов.
Эта работа — предостережение от необоснованного применения ГП ГАЗ-71 в трансмиссиях легких вездеходов без понимания пределов прочности ГП ГАЗ-71.
Главной задачей статьи являлось определение диапазона применимости ГП ГАЗ-71 и доказательство некорректности сравнения нагрузочных способностей ГП ГАЗ-71 и ГП ВАЗ.
off-roader.ru
Сварка трещины корпуса ГП ГАЗ 71 — бортжурнал PTZavr амфибия 6х6 2012 года на DRIVE2
При отмывки корпуса снизу обнаружилась трещина 15 см длинны . Все признаки говорят что корпус разморозили когда то. Надо варить алюминий. Наверно проще было было сдать куда то но это не про нас. Нам надо ж все сделать самим .
Ранее был куплен про запас аппарат для сварки аргоном в режимах AC|Dc, так скажем на перспективу и валялся в углу пару лет и вот настал его час. Также была куплена горелка, отдельно.
Достали очистили от пыли и смотрим : как им пользоваться? ручек куча, для чего, инструкции нет, в нете ее тоже нет. Аппарат совесткий, спецэлектрод. Изучили видео по другим, почитали инструкции от современных. Стало понятно более мение.
Ставим горелку, включаем а газ не идет. Пришлось перебрать клапан. Хорошо что наш, разборный оказался. Заел за давность лет.
Заработало. Ставим все ручки на ноль, ток 100а и пробуем на куске алюминия. Техника сварки отличается от полуавтомата. В общем часик потренировались на разных режимах.

Полный размер
Тащим корпус. Пробуем. И не выходит. Не может эта горелка прогреть его. Грем газом дополнительно но толку нет. А может умения нет. По итогу надо больше 150 а а горелка держит 130 и дальше плавится электрод.
Но как говорится у нас было.
Лежим в чулан и вытаскиваем мегагорелку советкого прошлого на 400 А с водяным охлаждением. 2 часа возни со шлангами и проводами, ничего ж не подходит просто так. Приделываем кнопку к ней по временной схеме, подключаем к помпе сож станка для охлаждения, там вода налита, годится.

Полный размер

Полный размер
Врубаем 250А и это чудо плавит этот корпус на сквозь, а там стенка 15 мм. Уменьшаю до 210 , зачищаем, подогреваем сам корпус до 150 гр. и варим. Присадка в 3 мм улетает метр за метром. Очень жарко в обычных перчатках . Но по итогу заварили без пор. Сплав на корпусе грязный, в расплаве много грязи всплывает.
Проверили керосином на мел, нормально.

Полный размер
Вот так приходится за день освоить сварку алюминия. Может на инверторном аппарате оно легче получается, не знаю.
Теперь можно собирать.
Нравится 28 Поделиться: Подписаться на машину
www.drive2.ru
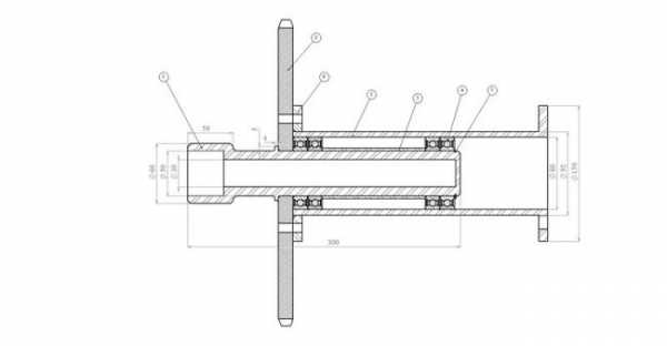
Главный привод гусеничного вездехода с ГП ГАЗ 71 | Детали и узлы автомобилей
Трансмиссия гусеничного вездехода 1\ГП ГАЗ 71 с ведущими колёсами .SLDASM
Трансмиссия гусеничного вездехода 1\Детали и узлы главного привода\Болт венца
Трансмиссия гусеничного вездехода 1\Детали и узлы главного привода\Ведущее колесо в сборе М .SLDASM
Трансмиссия гусеничного вездехода 1\Детали и узлы главного привода\Вилка кардана ГАЗ 53.SLDPRT
Трансмиссия гусеничного вездехода 1\Детали и узлы главного привода\Вилка кардана УАЗ.SLDPRT
Трансмиссия гусеничного вездехода 1\Детали и узлы главного привода\Втулка распорная венца.SLDPRT
Трансмиссия гусеничного вездехода 1\Детали и узлы главного привода\Гайка ведущего колеса.SLDPRT
Трансмиссия гусеничного вездехода 1\Детали и узлы главного привода\ГП ГАЗ 71 . — .SLDPRT
Трансмиссия гусеничного вездехода 1\Детали и узлы главного привода\Колесо ведущее 2(18 зубьев).SLDPRT
Трансмиссия гусеничного вездехода 1\Детали и узлы главного привода\Консоль узла ведущего колеса.SLDPRT
Трансмиссия гусеничного вездехода 1\Детали и узлы главного привода\Крестовина ГАЗ 53.SLDPRT
Трансмиссия гусеничного вездехода 1\Детали и узлы главного привода\Подшипник 6207.SLDPRT
Трансмиссия гусеничного вездехода 1\Детали и узлы главного привода\Подшипник 7509 (габаритный).SLDPRT
Трансмиссия гусеничного вездехода 1\Детали и узлы главного привода\Подшипник 7510 (габаритный) .SLDPRT
Трансмиссия гусеничного вездехода 1\Детали и узлы главного привода\Полуось ведущего колеса
Трансмиссия гусеничного вездехода 1\Детали и узлы главного привода\Полуось переднего моста левая (ГАЗ) — копия.SLDPRT
Трансмиссия гусеничного вездехода 1\Детали и узлы главного привода\Проставка кардана.SLDPRT
Трансмиссия гусеничного вездехода 1\Детали и узлы главного привода\Сальник 65х90.SLDPRT
࠭ᬨ ᥭ筮 室 1\⠫ 㧫 ਢ\ઠ 䫠 室 ठ — 2.SLDASM
Трансмиссия гусеничного вездехода 1\Детали и узлы главного привода\Ступица ведущего колеса 16.SLDPRT
Трансмиссия гусеничного вездехода 1\Детали и узлы главного привода\Ступица ГАЗ — ДОРАБОТКА.SLDPRT
Трансмиссия гусеничного вездехода 1\Детали и узлы главного привода\Фланец диска ВК 2 — 16.SLDPRT
Трансмиссия гусеничного вездехода 1\Детали и узлы главного привода\Фланец диска ВК 2 прижимной.SLDPRT
Трансмиссия гусеничного вездехода 1\Детали и узлы главного привода\Фланец М ведущий ГАЗ.SLDPRT
Трансмиссия гусеничного вездехода 1\Детали и узлы главного привода\Фланец переходной
Трансмиссия гусеничного вездехода 1\Детали и узлы главного привода\Фланец переходной тормозного барабана.SLDPRT
Трансмиссия гусеничного вездехода 1\Детали и узлы главного привода\Фланец хвостовика моста УАЗ .SLDPRT
Трансмиссия гусеничного вездехода 1\Детали и узлы главного привода\Цапфа М ГАЗ.SLDPRT
Трансмиссия гусеничного вездехода 1\Детали и узлы главного привода\Цетральная труба ведущего колеса 2 — 16.SLDPRT
Трансмиссия гусеничного вездехода 1\Детали и узлы главного привода\Шпилька ведущего фланца.SLDPRT
Трансмиссия гусеничного вездехода 1\Детали и узлы главного привода
Трансмиссия гусеничного вездехода
vmasshtabe.ru
